ДИЗАЙН-ПРОЕКТ включает в себя:
1. 3D-визуализация / коллажи
всех помещений;
2. Комплект чертежей:
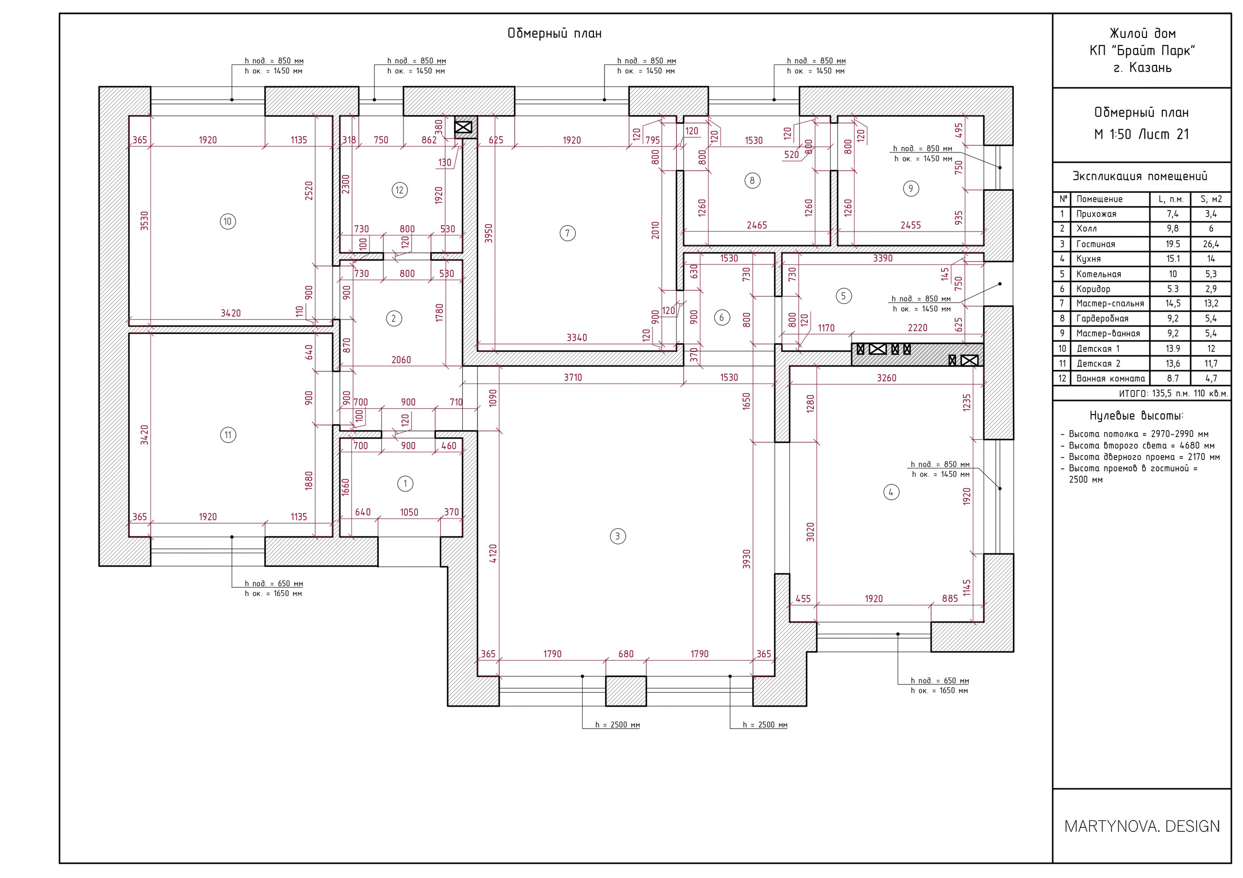
- Обмерный план
- План демонтажных работ
- План монтажных работ
- План перепланировки
- План расстановки мебели
- План сантехники и отопления
- План теплых полов
- План дверей
- План напольных покрытий
- План раскладки плинтусов
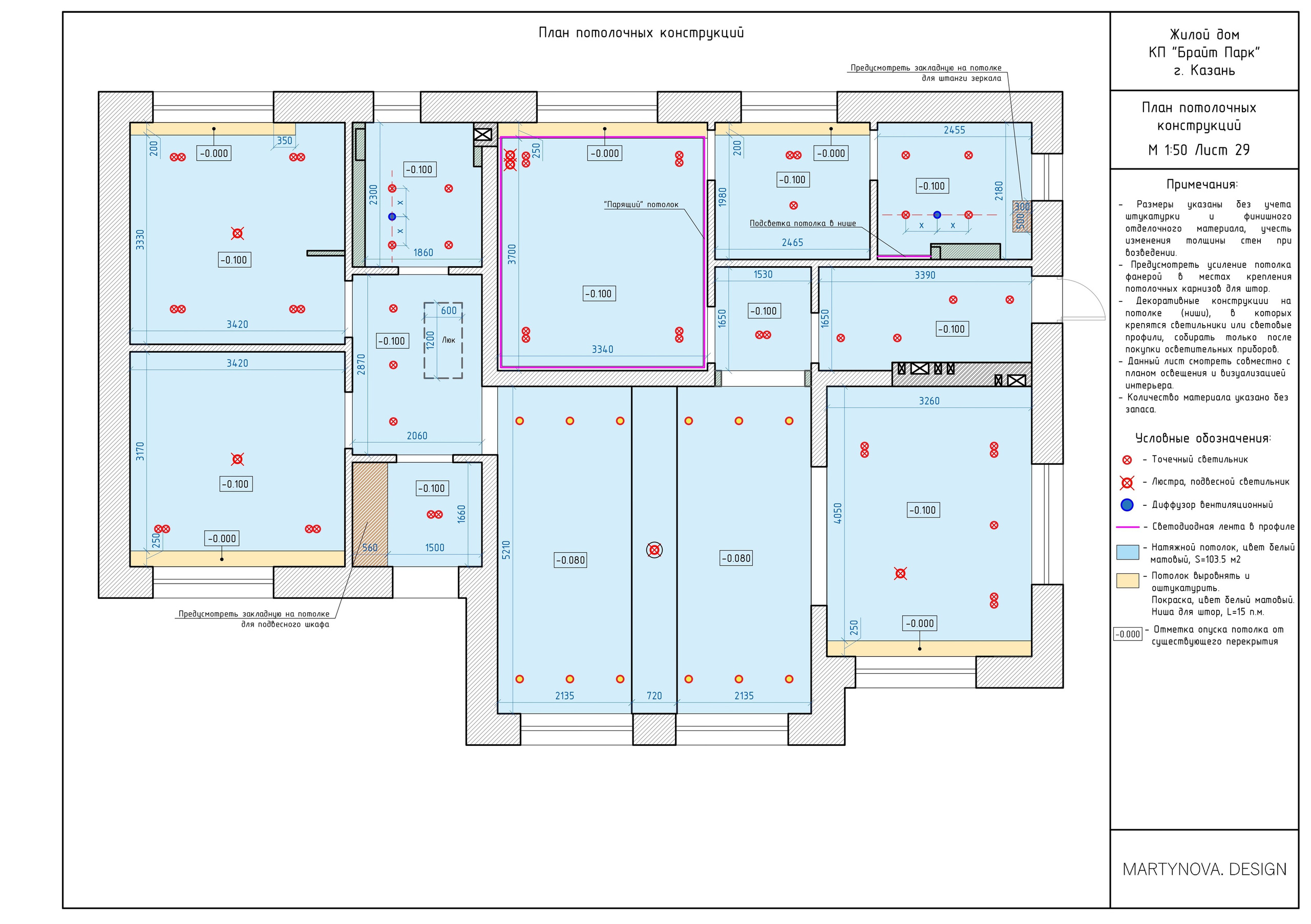
- План потолочных конструкций
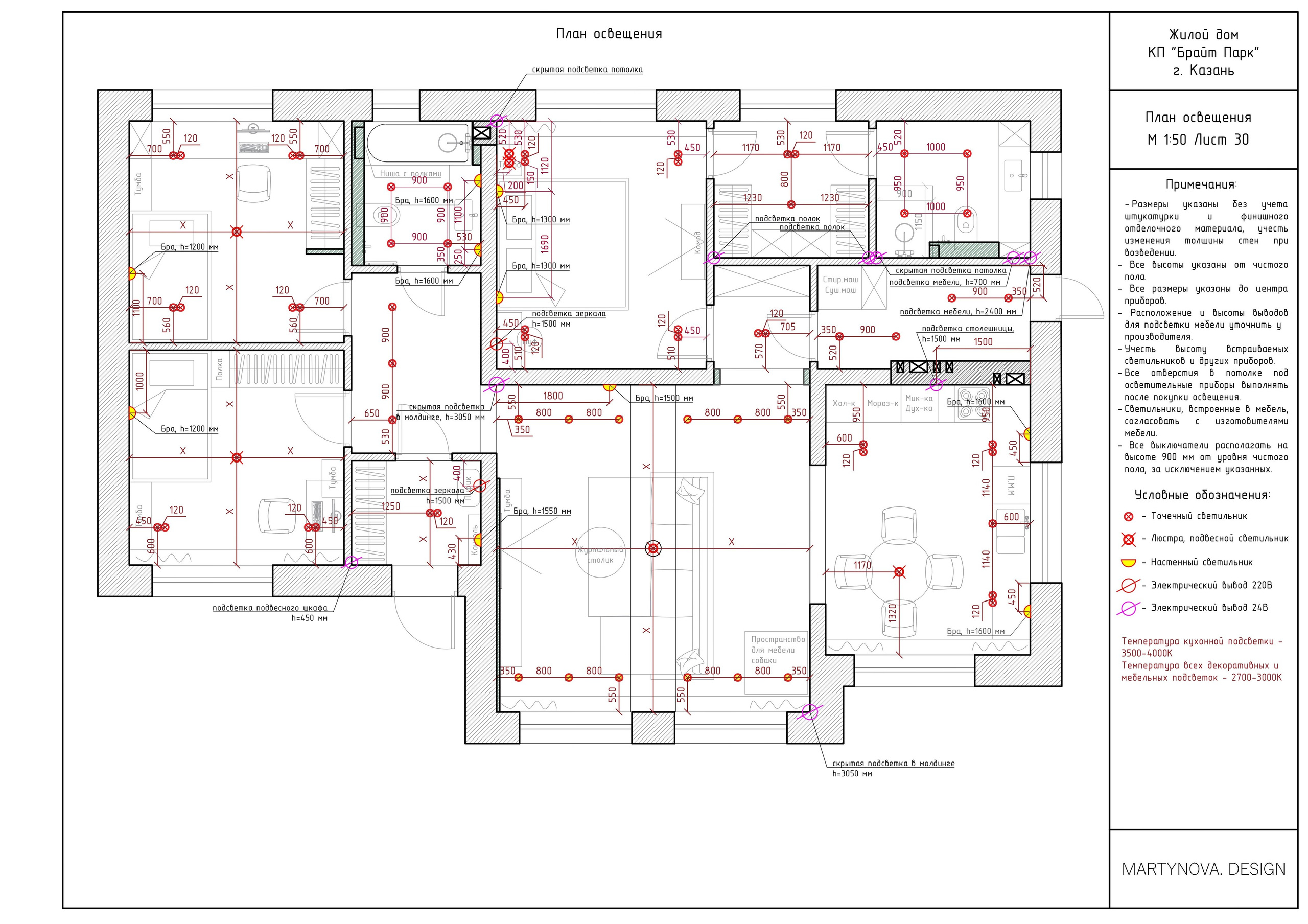
- План освещения
- План привязки выключателей
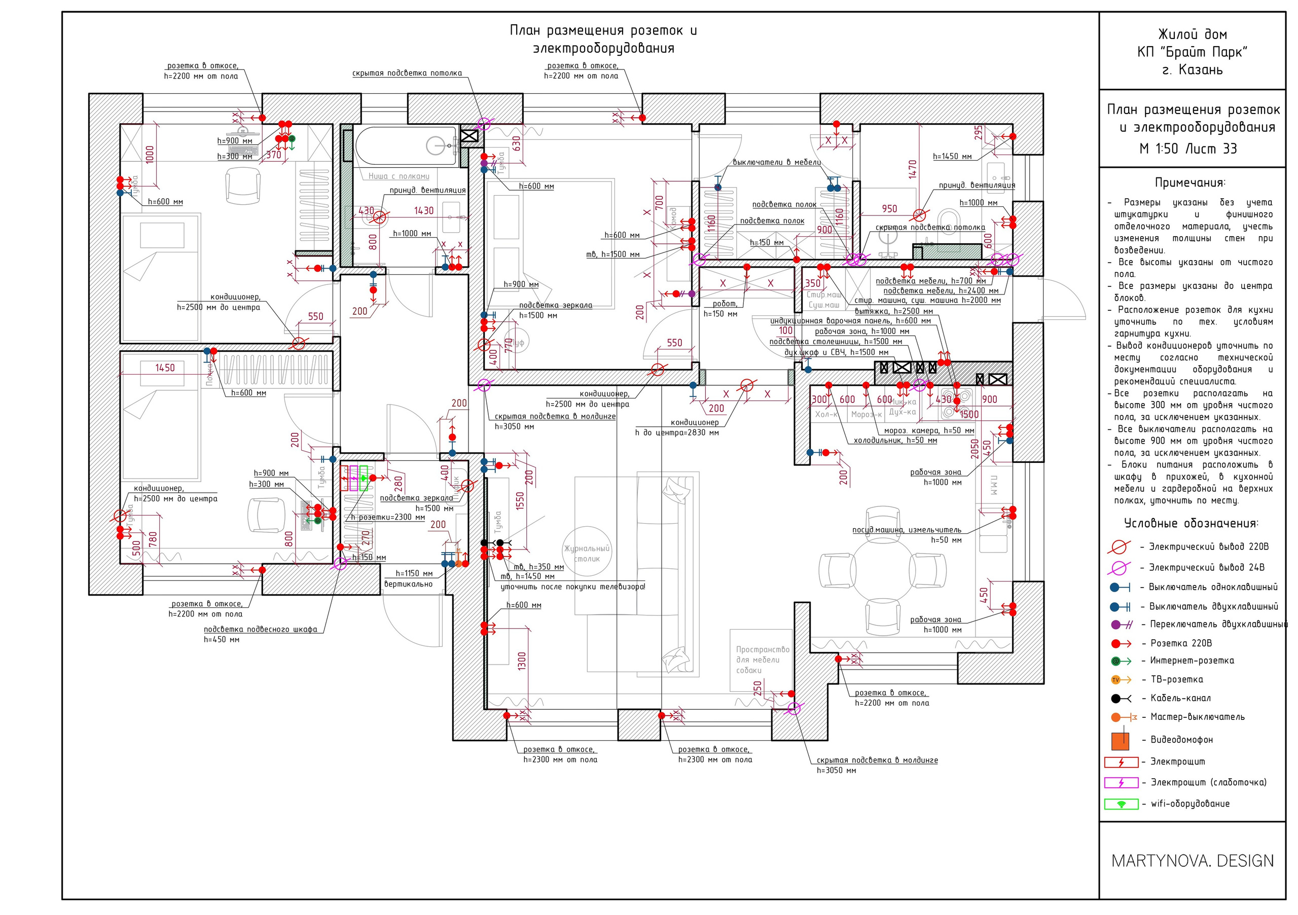
- План размещения розеток и электрооборудования
- План отделки стен
- Развертки стен помещений
- Чертежи заказной мебели;
3. Ведомость чистовых отделочных материалов, светильников и готовых позиций мебели.
* в любом из проектов я всегда помогаю с комплектацией, рекомендациями и поиском подрядчиков и исполнителей для реализации проекта.















