Главная
Обо мне
Проекты
Услуги
Контакты
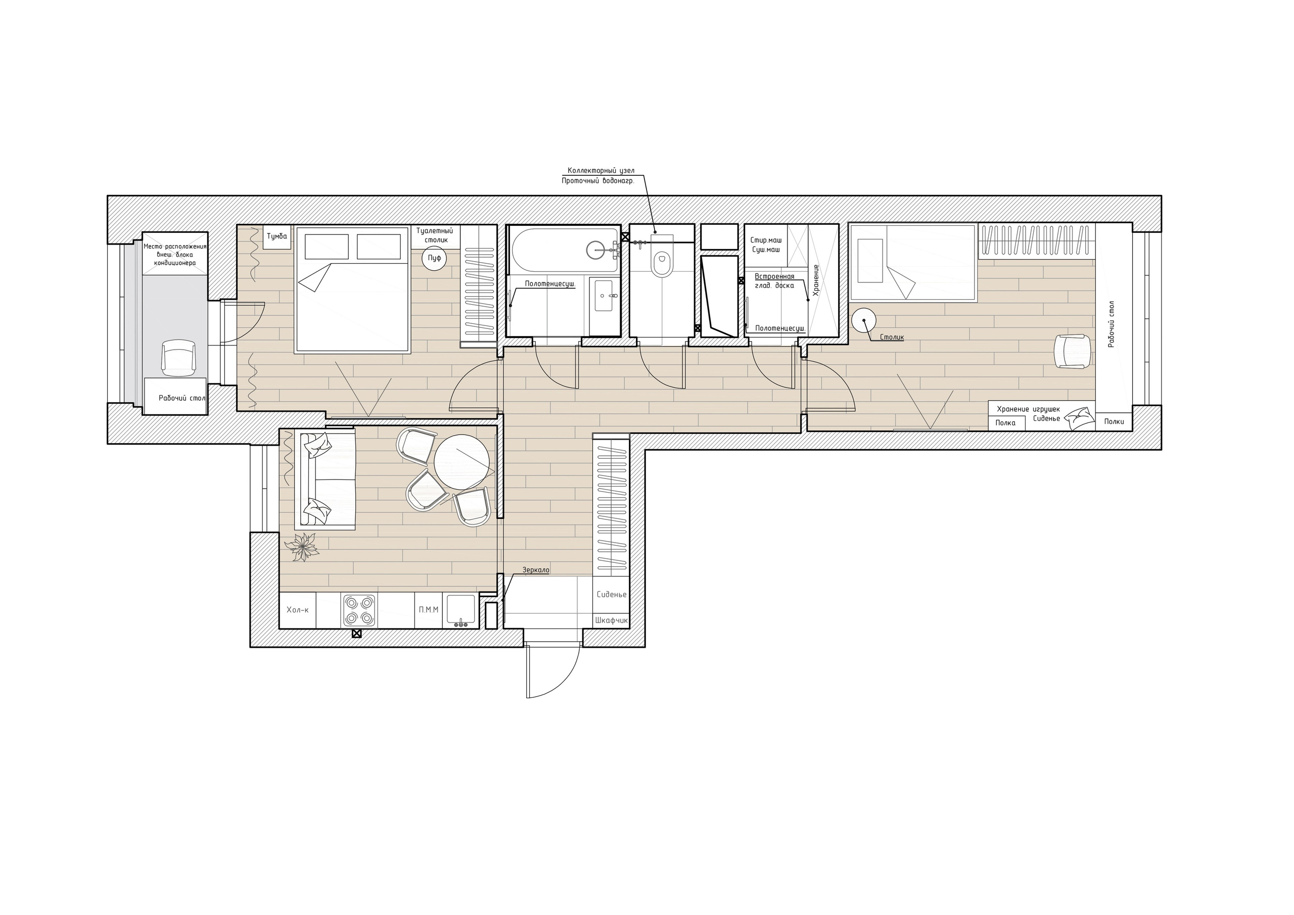
ЖК Открытие 65.8 м²
ОБЩАЯ ПЛОЩАДЬ:
65.8 м²
ГОРОД:
Казань
2025 г.
Проекты
Квартира по ул. Гастелло 54.5 м²
ЖК Рассказово 78 м²
Дом Брайт парк 110 м²
ЖК Дубрава 2.0 67 м²
Дом Большие кабаны 100 м²
ЖК Светлая долина 61 м²
ЖК Станция спортивная 55 м²
ЖК Яратам 78.2 м²
ЖК Savin Family 70 м²